立体倉庫の改造
発表日:2018-06-04
会社の売上高が年々増加するにつれて、増産に直面し、倉庫の使用面積を圧縮する必要がある。有限空間を合理的に利用し、労働強度を減らすために、倉庫を全面的に改造し、近代的な立体倉庫を建設することを決めました。
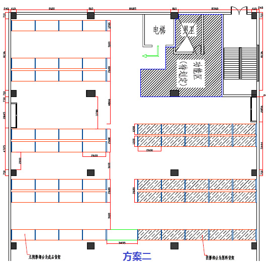
審査時初期、会社の中長期計画に基づき、工場の使用面積に基づき、設計案は狭い路地の立体棚として定められ、費用は最初に狭い路地のフォークリフト1台45万、補助フォークリフト1台8万、棚14万、合計費用は約67万と確定した。今回の倉庫の審査時の改造に対して、私達は会社の実際の運営状況を結び付けて、ここ数年会社が推進してきたTPS改善の成果を利用して、積極的に現場の従業員の意見を求めています。最終的に今回の倉庫改造には一括投入が大きく、工場の実際の使用面積が十分に利用されていないことが確認されました。

最終的に立体倉庫の建設を二段階に分けて歩くことにしました。一、狭い路地から正常な通路に変えて、棚の数は変わらず、敷地面積は1/3増加しました。二、使用面積が足りない時は正常な通路から狭い路地に変えて、棚を移動するだけで、狭い路地のフォークリフトを増加させて、使用面積の1/3を減らすことができます。二つのステップを通じて、残りのスペースを十分に利用し、最終的な投資に影響を与えない上で、流動資金を確保するのは約47万円です。

「三現主義」の花は上海の正村で満開になりました。
次回は倉庫改善後の現物を展示しますので、ご期待ください。
前回:「一周一授業」が始まる2018-05-22 00:00:00
次へ:会社の発展は教育先行です2018-06-25 00:00:00

