实验室布局与展望
发布日期:2024-01-02
2023年11月,上海正村橡塑工业有限公司迎来新的产业拓展——液态硅胶seal产品。场地布局、市场调查、设备引进、产品调研等工作都在有条不紊的进行。为了更好地满足液硅生产场地和新增实验设备对于试验场所的需求,我们对实验室进行了全新的规划和升级。
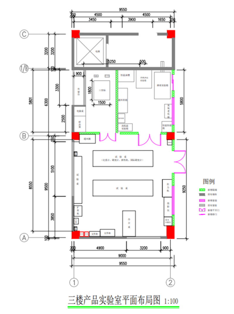
1 新实验室布局
现实验室在二期厂房二楼,因液硅项目场地需求,实验室整体需搬迁至三楼。新实验规划需对原占地面积为160㎡压缩至135㎡,同时新增两台实验设备,规划难度可想而知。

另外,目前的实验室无论在布局上,还是在场地利用上都存在很多问题。例如,清洁度检测试验,从制样工序到检测工序,需要跨过整个实验桌,布局不合理。新实验室布局需对此进行改善。
为此,公司组织了实验室布局规划讨论,经过多轮评审,新的规划图纸终于落地。

1.1 散热类检测设备的集中布局。将在运行过程中会产生热量的检测设备集中布局,并安装通排风系统。这不仅能够改善设备的运行环境,还有利于提升设备的使用寿命。
1.2 新增三坐标检测仪对工作环境要求高的特点,设备自重较大。在布局规划时,必须同时兼顾承重场地和工艺路线的要求。
2、新实验设备引入
工欲善其事,必先利其器。为提升公司实验检测能力,实验室重磅引进两大测试利器——蔡司三坐标检测仪、蔡司蓝光三维扫描仪。
蔡司作为一家全球性的高科技公司,在半导体技术、工业测量仪器、显微镜、医疗仪器、视觉关怀及光学消费品等领域,都居于全球领先地位。在工业测量仪器领域,蔡司为行业提供最高品质的测量机产品及先进全面的工业测量解决方案。
2.1 CMM SPECTRUM 高性能三坐标测量机
该机型广泛适用于各类型工件的测量,其独到的蔡司固定台面,纳米工业陶瓷材质涂层,横梁桥式结构,高稳定低重心运动,高精度快速测头系统及众多技术优势,确保了系统的绝佳精度及动态性能。高刚性结构提高了系统对于环境的抗干扰性能及长久的稳定性。为塑料件、模具、金属件的测量保驾护航。

2.2 ATOS Q——全新的紧凑型 ATOS
在工业行业,ATQS系统已成为光学三维测量领域的领导者。精密的光电子器件,工业级坚固测头设计和功能强大的运算软件是其成功的基础。ATOS Q继承历代ATOS系统的优点,并在设计、技术和性能上进一步完善,打造出了一款继承 ATOS优良DNA的多功能紧凑型系统。ATOS Q 作为一款可靠的多功能扫仪,可完美解决复杂的测量和检测难题。紧凑的体积充分满足高端计量需求,适用于不同行业的复杂测量和检测任务。可更换的镜头确保中、小型零件的高精度测量。

橡胶产品易变形,测量过程中涉及到将产品破开测量,常规设备测量不能反应产品的准确尺寸。有了该设备可以直接对产品进行全方位扫码测量,并且可生成点云图,在产品逆向开发过程中将发挥强大的作用。
新设备、新实验室、测试能力的提升也代表着正村不会满足于现在取得的成绩将持续投入,在接下来将持续发力。为客户提供更加稳定可靠的高质量产品。
上一篇:BAC1141类产品修边方法的改善2023-12-27 11:27:03
下一篇:日积跬步 可至千里2024-01-15 09:57:48

