立体仓库改造
发布日期:2018-06-04
随着公司销售额的逐年增加,面临着扩产增产,需要压缩仓库的使用面积。为了合理利用有限空间,减少劳动强度,公司决定对仓库进行全面改造,建立现代化立体仓库。
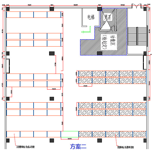
立项初期,根据公司的中长期规划,基于厂房的使用面积,设计方案定为窄巷道立体货架,费用初步确定为窄巷道叉车一辆45万、辅助叉车一辆8万、货架14万,合计费用约为67万。针对这次仓库立项改造,我们结合公司实际运营情况,利用近几年公司一直推行的TPS改善成果,积极争取一线员工的意见。最后确定此次仓库改造存在一次性投入大,厂房的实际使用面积得不到充分利用(会出现闲置区域)的问题。

最终决定立体仓库的建设分两步走:一、由窄巷道改为正常通道,货架数量不变,占地面积增加1/3;二、当使用面积不够时再由正常通道改为窄巷道,只需移动货架,增加窄巷道叉车,即可减少使用面积1/3。通过两步走的方案,在充分利用剩余空间,不影响最终投入的基础上,盘活流动资金约47万。

“三现主义”之花已在上海正村盛开,开花结果,必将会收获满满!!!
下一期我们将向大家展示仓库改善后的现场实物,敬请期待!
上一篇:“每周一课”正式启动2018-05-22 00:00:00
下一篇:企业发展,育才先行--记徐工院老师来我司培训2018-06-25 00:00:00

