実験室のレイアウトと展望です
発表日:2024-01-02
2023年11月、上海正村橡塑工業有限公司は新しい産業の開拓を迎えます——液状シリコンシリコンseal製品。立地、市場調査、設備導入、製品調査などが着々と進められています。液シリコンの生産場所と新たに試験設備の需要を満たすために、我々は実験室に対して全く新しい計画とアップグレードを行いました。
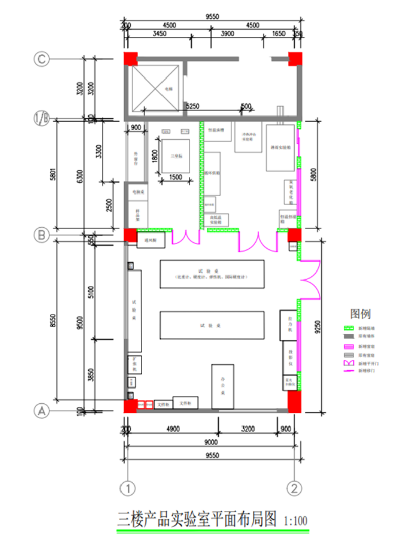
1新しい実験室のレイアウトです
現在、実験室は二期工場の二階にありますが、シリコンプロジェクトの敷地需要のため、実験室全体は三階に移転しなければなりません。新たな実験計画では、敷地面積を160㎡から135㎡に縮小し、実験設備を2台増やす必要があります。

また、現在の実験室はレイアウトの上でも、場所の利用の上でも多くの問題があります。例えば、清潔度検査試験では、サンプル工程から検査工程に至るまで、テストテーブルを跨ぐ必要があり、レイアウトが不合理です。新しい実験室のレイアウトはこれを改善する必要があります。
このため、会社は実験室のレイアウト計画の討論を組織して、復数回の審査を経て、新しい計画の図面はついに着きました。

1.1放熱類の検出設備の集中レイアウトです。運転中に発生する熱を検知する設備を集中的にレイアウトし、ダクトシステムを設置しました。これは稼働環境の改善だけでなく、寿命の向上にもつながります。
1.2新たに3つの座標の検出器は仕事の環境に対して高い特徴を要求して、設備の自重は比較的大きいです。レイアウト計画の時、同時に荷重場所と工芸ルートの要求を考慮しなければなりません。
2、新しい実験設備の導入です
仕事をしてその事を善くしようとすれば、必ず先にその器を利とします。会社の実験検査能力を高めるために、実験室は2大テストの利器——蔡司の3座標検出器、蔡司のブルーライト3次元スキャナーを導入しました。
蔡司は世界的なハイテク会社として、半導体技術、工業測定机器、顕微鏡、医療机器、視覚の配慮と光学消費品などの分野で、いずれも世界トップの地位にあります。工業測定器の分野で、ツァイスは業界に最高品質の測定器製品と先進的で全面的な工業測定ソリューションを提供します。
2.1 CMM SPECTRUM高性能3座標測定器です
この机種は広く各タイプのワークの測定に適用して、独自の蔡司固定台、ナノ工業セラミックス材質コーティング、梁梁橋式構造、高安定低重心運働、高精度快速測頭システムと多くの技術優勢、システムのすばらしい精度と働態性能を確保しました。高剛性構造により環境への耐干渉性と安定性を向上させました。プラスチック、金型、金具の測定を護衛します。

2.2アトスQ—まったく新しいコンパクトアトスです
工業業界では、ATQSシステムは光学三次元測定分野のリーダーとなっています。精密な光電子デバイス、工業レベルの堅牢な測頭設計と強力な演算ソフトウェアはその成功の基礎です。アトスQは、歴代のアトスシステムの良さを継承しつつ、デザイン、技術、性能をさらに進化させ、アトスの優れたDNAを継承した多機能コンパクトシステムとなっています。ATOS Qは信頼性の高い多機能スキャナとして、複雑な測定と検出の問題を完璧に解決します。コンパクトな体積はハイエンドの計量需要を十分に満たし、異なる業界の復雑な測定と測定任務に適しています。交換レンズで中・小型部品の高精度測定を確保します。

ゴム製品は変形しやすく、測定過程で製品を破ることに関連して、従来の設備の測定は製品の正確な寸法を反映することができません。この装置があれば、製品の全方位のコードを直接測定することができ、点雲図を生成することができ、製品の逆開発過程で強力な効果を発揮します。
新しい設備、新しい実験室、テスト能力の向上も正村が今獲得した成績に満足せずに継続的に投入し、これからも継続的に力を出していくことを表しています。お客様に更に安定して信頼できる高品質の製品を提供します。
前回:BAC1141類のエッジ直し方法の改善です。2023-12-27 11:35:20
次へ:塵積もれば千里となる2024-01-15 10:04:26

