Laboratory layout and prospect
Release date:2024-01-02
In November 2023, Shanghai Zhengcun Rubber & Plastic Industry Co., Ltd. ushered in a new industrial expansion - liquid silicone seal products. Site layout, market research, equipment introduction, product research and other work are carried out in an orderly manner. In order to better meet the needs of liquid silicon production sites and new experimental equipment for the test site, we have carried out a new plan and upgrade of the laboratory.
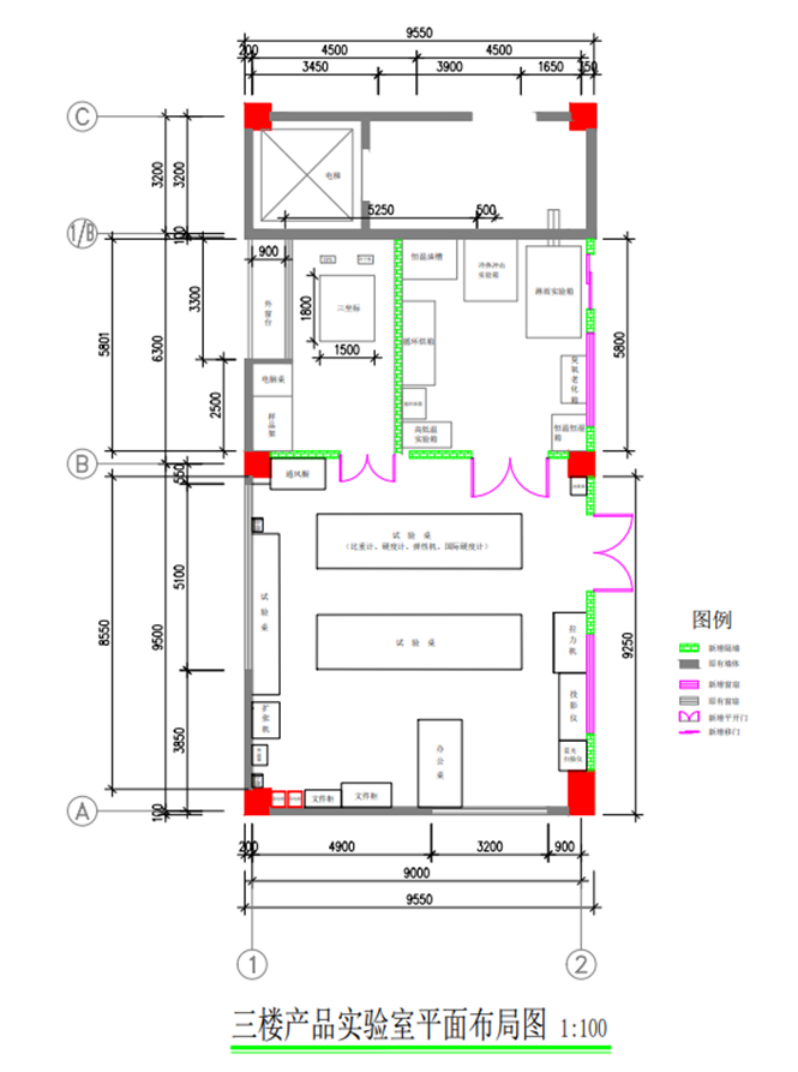
1 New laboratory layout
Currently, the laboratory is on the second floor of the second plant. Due to the site requirements of the liquid silicon project, the entire laboratory needs to be moved to the third floor. The new experimental planning needs to compress the original area of 160 square meters to 135 square meters, while adding two experimental equipment, the planning difficulty can be imagined.

In addition, there are many problems in the layout of the current laboratory and in the use of the site. For example, the cleanliness test, from the sample preparation process to the testing process, needs to cross the entire experimental table, and the layout is unreasonable. The new laboratory layout needs to be improved.
To this end, the company organized the laboratory layout planning discussion, after several rounds of review, the new planning drawings finally landed.

1.1 Centralized layout of heat dissipation detection devices. The testing equipment that will generate heat during operation will be centrally arranged, and the ventilation and exhaust system will be installed. This can not only improve the operating environment of the equipment, but also improve the service life of the equipment.
1.2 The new coordinate detector has the characteristics of high requirements for the working environment and large equipment weight. In the layout planning, the requirements of load-bearing site and process route must be taken into account at the same time.
2. Introduction of new experimental equipment
If a worker wants to do a good job, he must first sharpen his tools. In order to enhance the company's experimental testing capabilities, the laboratory has introduced two major testing tools - the Zeiss coordinate detector and the Zeiss Blu-ray 3D scanner.
As a global high-tech company, Zeiss is a global leader in semiconductor technology, industrial measuring instruments, microscopes, medical instruments, visual care and optical consumer products. In the field of industrial measuring instruments, Zeiss offers the industry
The highest quality measuring machine products and advanced comprehensive industrial measurement solutions.
2.1 CMM SPECTRUM high-performance coordinate measuring machine
The machine is widely used for the measurement of various types of workpieces, its unique Zeiss fixed table, nano industrial ceramic coating, beam bridge structure, high stability and low center of gravity movement, high precision and fast probe system and many technical advantages ensure the excellent accuracy and dynamic performance of the system. The high rigidity structure improves the anti-interference performance and long-term stability of the system to the environment. Escort the measurement of plastic parts, molds and metal parts.

2.2 ATOS Q - The new compact ATOS
In the industrial sector, ATQS systems have become a leader in the field of optical 3D measurement. Precision optoelectronics, industrial-grade rugged probe design and powerful computing software are the basis for its success. The ATOS Q inherits the advantages of past ATOS systems, and further improves the design, technology and performance to create a versatile compact system that inherits the good DNA of ATOS. The ATOS Q is a reliable and versatile scanner that solves complex measurement and inspection problems perfectly. The compact volume fully meets the needs of high-end metrology and is suitable for complex measurement and inspection tasks in different industries. Replaceable lenses ensure high precision measurement of medium and small parts.

Rubber products are easy to deform, the measurement process involves breaking the product to measure, conventional equipment measurement can not reflect the exact size of the product. With this device, the product can be measured directly in a full range of scanning code, and can generate point cloud map, which will play a powerful role in the process of product reverse development.
The improvement of new equipment, new laboratories and testing capabilities also means that Zhengcun will not be satisfied with the current achievements and will continue to invest in the next effort. To provide customers with more stable and reliable high quality products.
Last article:Improvement of trimming method for BAC1141 products2023-12-27 11:32:16
Next article:A day can take a thousand miles2024-01-15 10:01:22

