Reconstruction of stereoscopic warehouse
Release date:2018-06-04
With the company's sales increasing year by year, facing the expansion of production and production, it is necessary to reduce the use area of warehouses. In order to make rational use of limited space and reduce labor intensity, the company decided to carry out a comprehensive transformation of the warehouse and establish a modern three-dimensional warehouse.
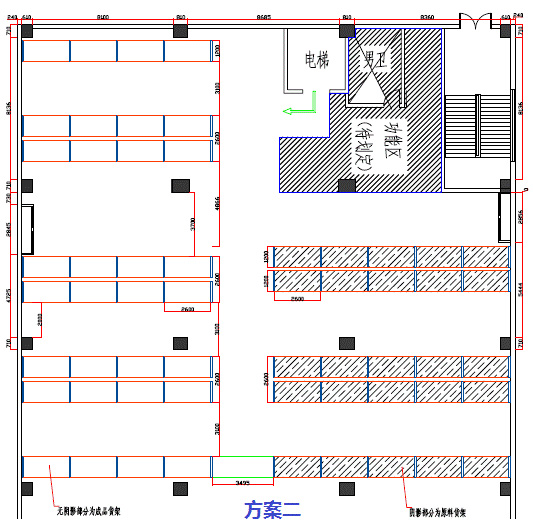
At the beginning of the project, according to the company's medium-term and long-term planning, based on the use area of the plant, the design scheme is defined as a narrow roadway three-dimensional shelf. The cost is initially determined as a 450,000 narrow roadway forklift, 80,000 auxiliary forklift, 140,000 shelves, and the total cost is about 670,000. In view of this warehouse renovation project, we take advantage of the TPS improvement results that the company has been implementing in recent years, and actively strive for the opinions of front-line employees. Finally, it is determined that there is a problem of large one-time investment and insufficient utilization of the actual area of the plant (there will be idle areas).

The final decision of the three-dimensional warehouse construction is divided into two steps: first, the number of shelves will remain unchanged and the area will increase by 1/3; second, when the use area is insufficient, the normal channel will be changed to narrow roadway. Only by moving the shelf and increasing the narrow roadway forklift, the use area will be reduced by 1/3. Through the two-step plan, on the basis of making full use of the remaining space without affecting the final investment, the liquidity of about 470,000 yuan will be revitalized.

The flower of "Three Present Doctrines" has blossomed in Zhengcun, Shanghai, and will surely reap a full harvest!
Next issue we will show you the improved warehouse on-site physical objects, please look forward to!
Last article:"One lesson a week" was officially launched2018-05-22 00:00:00
Next article:Talent is the most important in the development of company2018-06-25 00:00:00

